Current Projects
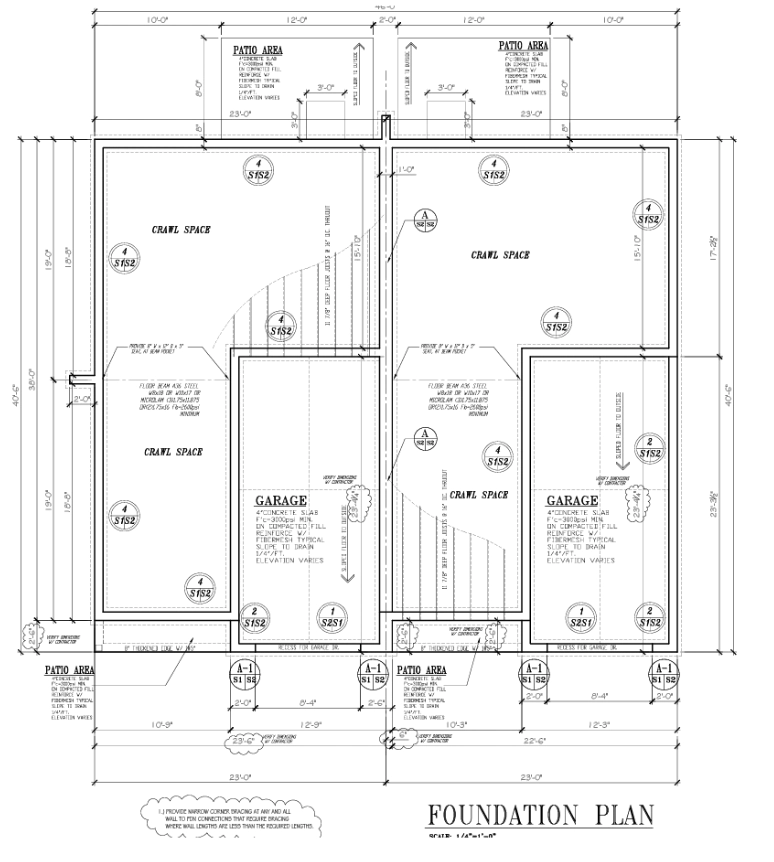
Pueblo CO Duplex Build
We’re continuing to build in Colorado, with our most recent project being a duplex in Pueblo West. Below you’ll see the foundation plan. We’re hoping to break ground early 2026
Lee County Heirship issues
A family reached out this past summer about their tract in Lee County, SC. They wanted to sell — and had tried to — but were unable to because of multiple breaks in the chain of title. They’d been paying taxes on the property for decades and were worried they’d wasted that money. Working with our attorney, we’re now in the process of clearing the title and expect to close by next spring. The family will get paid, and we’ll have another great property in our portfolio!
Lee County FL Probate
In Lee County, FL, a family inherited a pool of land but it needed to go through probate. Their attorney had completed probate in the state their parents had lived in BUT didn’t do probate in FL. We hired a probate attorney, paid for it out of pocket and were able to buy several lots from the family without them having to do anything other than signing the closing docs!
Suitable Septic in Lumberton
We recently purchased a piece of land in Lumberton, NC where the seller had been told his lot failed a percolation test. Given our knowledge of the soils on his property, that didn’t seem right. We had our soil engineer re-evaluate the land and it was found to be feasible to put in septic. So we bought his lot the next week!
Wakulla County Quiet Title
We recently purchased a parcel in Wakulla County that had a complicated ownership history. The seller couldn’t sell it to anyone since title companies wouldn’t insure it due to mistakes made on a deed from half a century ago. We worked through a full quiet title action, paid for it so the seller had no money out of pocket, and cleared the chain of title. The seller walked away with his money and we got an awesome property!
Carteret County Access Issues
One landowner in Carteret County couldn’t sell because the property was technically landlocked with no legal road access. We coordinated with neighbors and our attorney to secure an easement, opening the property up and allowing the seller to walk away with cash in hand.
Bolivia NC HOA Liens
In Bolivia, NC, a property was tied up by old HOA liens and unpaid dues that were more than the property was worth. Consequently, the seller was stuck, unable to sell her property without bringing money to the closing table. We negotiated directly with the HOA’s attorney, satisfied the liens, and handled all paperwork so the seller didn’t have to deal with it and still got paid!
